The MGA With An Attitude
Throttle Return Springs - CB-118
Since redundancy is the soul of safety, there are four throttle return springs on the MGA.
| There is a tension spring at the output end of the throttle cable to assist return of the cable.
There is a tension spring at the input end of the throttle cable to assist return of the throttle pedal.
There are torsion springs on each carburetor throttle shaft that will close the throttle plate in case anything or everything else might fail.
|
In spite of all this I have seen a case where the throttle cable was frayed and sticking a little, and the cable return spring broke, and the throttle stuck wide open resulting in a sudden encounter with a very tall sidewalk curb. An MGB was totaled in the process, luckily with no injuries and no other property damage. Just remember that these throttle return springs are serious business for your safety.
Throttle Cable Return Spring:
AHH5339 - Bracket, accelerator spring anchor (1500 and 1600) - Item 40 below
AAA649 - Bracket, return spring - Item 29 below (earlier part number was 84180)
AHH5621 - Return spring - Item 30 below (earlier part number was AJJ3020 or A3020)
On 12/5/2010, Craig Allinson wrote:
"Being the fork's main purpose is to hold the lower end of the spring, and that it goes on the bottom bolt of the right carb, I am confused at the hook next to it's hole. Hard to see how it should sit".
Place the bracket on the rear carb bottom bolt with the "hook" toward front. Rotate bracket clockwise until the hook hits the throttle body, and tighten the nut. The hook then sits in correct position so the bottom end of the bracket is properly aligned to accept the spring.
In this position I find the bracket interferes with wrenching the nut. When I install this bracket I leave it hanging vertical (or slightly more toward the rear) until the nut is mostly tight. Then with the last pull of the wrench I pull the bracket forward along with the wrench to end up in the correct final position.

Throttle Pedal Return Spring:
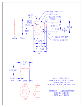
AHH5623 - Bracket, accelerator spring anchor, Com. (C) 24594 - Item 51 below
AHH5624 - Spring (Pull off) - Item 52 below
ACA5289 - Tee Barrel - Item 32 below - (replaces earlier part AHH5626)
This throttle pedal return spring is located in the passenger compartment where the throttle cable passes through the bulkhead. See CSM MG-202. This is a mid-production addition, recommended to be retrofit to earlier cars.


Plate 51 in the illustration attaches at the rear side of the bulkhead. Spring 52 connects to an ear on 51 and to the outer end of the cable trunnion 32 (which was revised to accept the spring). This spring will pull the throttle pedal up to full height even if the throttle cable is not properly adjusted. It also takes tension off of the throttle cable when the pedal is raised. Since this spring bracket and extended trunnion fitting may not be commercially available, there are drawings below so you might make your own parts. Click for full size drawings in pdf format.


Throttle Shaft Return Springs:
AUC4770 - Anchor, spring - Item 69 below
AUC4771 - End Clip - Item 72 below
AUC4781 - Spring, front - Item 70 below
AUC4782 - Spring, rear - Item 71 below
These throttle return springs are on the carburetor throttle shafts, items 70 and 71 in the illustration. These are torsion springs, one for each carburetor. They wind up in opposite direction in operation. They are anchored by items 69 and 72. Item 69 is keyed to the throttle body. Rotate item 72 to wind up the spring, then tighten the pinch bolt. The spring should be near full tension (but not binding) when throttle is wide open.

|